トップへ戻る
リノベーション施工事例
家の中の画像

RENOVATION

#165

ライフスタイル
LDK&家事ラク水回り

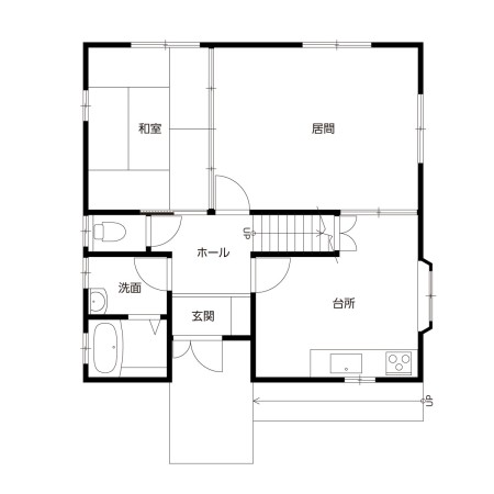
世代を超えて住み継ぐ家。整う動線。

築年数 20年 構造 木造 場所 富山県黒部市
費用 2,000万円前後 家族構成 ご夫婦、息子様 工事期間 90日間
工事箇所 1階全面改修
築年数 20年
構造 木造
場所 富山県黒部市
費用 2,000万円前後
家族構成 ご夫婦、息子様
工事期間 90日間
工事箇所 1階全面改修
家の中の画像

明るく収納量のある玄関

アウターを掛けるスペースを少し確保することで、すぐに出かけたいときに使うものやお客様のアウターを掛けておくことができ、何かと便利です。木目が素敵なYKKの玄関ドアを採用し、デザイン性も防犯面にも優れた商品を選びました。

家の中の画像

エントランスカウンター

玄関にちょっとしたカウンターがあることで、一気に便利さが増します。靴を脱ぎ履きするときの一時的な物置きとして使え、定位置も定まりやすくなるため、玄関の第一印象が良くなります。また、小物を飾ることで、楽しみが増し、より温かみのある空間になります。

家の中の画像

落ち着きのあるトイレ空間

トイレ空間には、落ち着いた空間をご提案し、LDKとは異なる木の色や部材を使用。また、異素材を組み合わせることで、バランスの取れた空間になりました。手洗い器の下には、お掃除道具も収納できるよう隠し収納スペースを設けています。

家の中の画像

木とグレーが調和する、上質なキッチン

キッチンはLIXIL「ノクト」を採用。木目の天井によりナチュラルで温かみのある印象を与え、キッチンはあえてグレーを採用することで、キッチン空間を調和。また、フロントオープンタイプの食洗機で洗いものが増えても安心。ダイニングからは見えないよう、収納を取り付けて、スッキリとしたキッチンに。

家の中の画像

会話が弾む対面ダイニング

これまで、キッチンとダイニングが離れていたため、お料理の最中も会話するということは、しづらかったと思います。これからのご家族の暮らし方としても、対面キッチンでダイニングが近くにあることで、お子様の様子を伺いながら家事ができます。

家の中の画像

広々と明るいリビングに

天井の高さを工夫することで、高低差が付き、自然と明るく広々としたリビングになりました。

家の中の画像

家事動線が考えられた水回り

キッチンからすぐに水回りのユーティリティーに行けるため、家事動線が最小限に。キッチンとユーティリティーの床には水に強いフロアタイルを、洗面化粧台はトクラス「エポック」を採用。収納がしやすい引出しタイプで、洗面用具も取り出しやすいものにしました。

家の中の画像

清掃性、使いやすさにこだわった脱衣室

お風呂からバスタオルが取りやすいように、寸法を細かく考慮してニッチを設けました。また、使用後のバスマットもすぐに干せるよう、バーを取り付けました。お風呂場は、お掃除の手間を最小限に抑えるため、窓や鏡は設置せず、いつでもキレイな状態でお風呂に入ることができます。

家の中の画像

マルチに使える洋室

方角等を考慮し、日当たりの良いお部屋はサンルームとして使用できます。今後はお子様の遊びの場として活用でき、その先の将来では、1階寝室としても使える洋室を設けました。

Before

家の中の画像

After

家の中の画像

おすすめ
リノベーション事例

トピックス

リノベーションをご検討の方にオススメ情報満載。
補助金やイベント情報などのトピックスはこちら!

無料 リノベーションに関する
お悩みは、
なんでも
お気軽にご相談ください

住まいづくりの経験豊富なプロ集団が在籍する石友リフォームサービスに、ぜひお気軽にご相談ください。
お客様が想い描く、暮らしのイメージを膨らませられる地域最大級のショールームもご活用いただけます。

WEBで相談する

皆様のリノベーションに関する疑問やお見積りを
経験豊富な専門スタッフがお答えします。

無料相談・お見積り

ショールームで相談する

実物の設備を見て、触って、体験しながら専門スタッフと
リノベーションの相談ができます。

来店予約